🌈おすすめポイント🌈
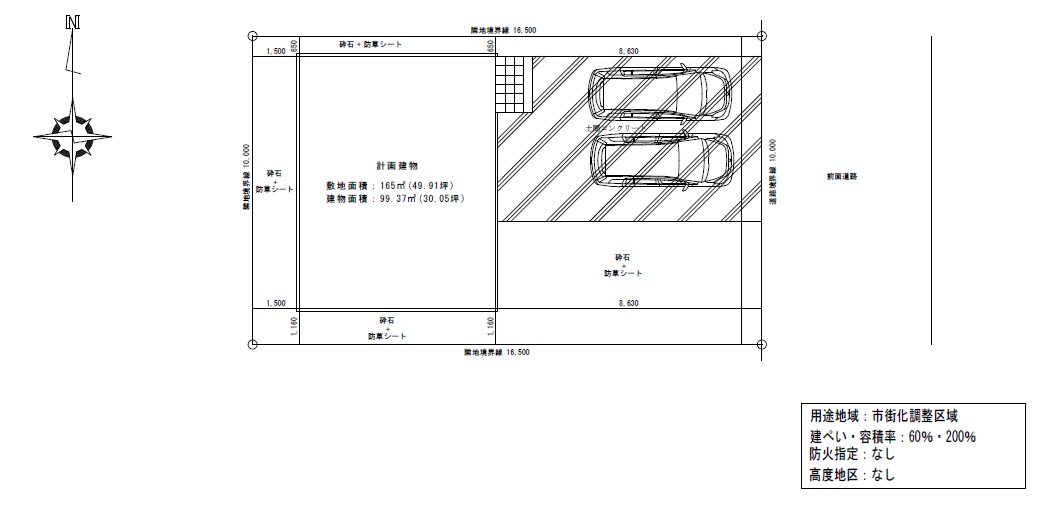
・敷地面積165.00㎡(49.91坪)🏠
・嬉しい更地渡しです✨
・閑静な住宅地で住みやすい環境です🎵
・最寄りのスーパー(ウエルシア小野天神店)まで徒歩14分🛒
・建築条件無い為、お好きなハウスメーカー・工務店等で建築可能です🏠
🏫小野東小学校まで徒歩18分🏫小野中学校まで徒歩20分
★ランドアークハウジングは、将来を見据えた物件のご提案させて頂きます。
☎まずはお気軽にお問合せ下さい!!
成約
|
| 所在地 | 兵庫県小野市天神町 |
|---|---|
| 交通 | 神鉄粟生線 小野駅 徒歩25分 |
| 駐車場 | 取引態様 | 売主 | |
|---|---|---|---|
| 引渡/入居時期 | 相談 | 現況 | 更地 |
| 地目 | 宅地 | 用途地域 | 無指定 |
| 都市計画 | 市街化調整区域 | 地勢 | 平坦 |
| 土地面積 | 165.00m² | 土地面積計測方式 | 公簿 |
| セットバック | 無 | セットバック量 | |
| 建ぺい率 | 60% | 容積率 | 200% |
| 土地権利 | 所有権 | 接道状況 | 一方 |
| 接道方向1 | 東 | 接道間口1 | 10.00m |
| 接道種別1 | 公道 | 接道幅員1 | 5.50m |
| 国土法届出 | 不要 | ||
| 周辺環境 |
校区(小野小学校 小野中学校 )
・ウエルシア小野天神店まで徒歩14分・セブンイレブン小野中町南店まで徒歩18分フレッシュバザール小野黒川店まで車9分・マックスバリュ黒川店まで車10分・小野市役所まで車8分・山田の里公園まで徒歩16分・栄光会小野病院まで徒歩18分・播州信用金庫小野支店まで徒歩18分 |
||
| 設備・条件 | 建築条件無 プロパンガス 公営水道 排水下水 | ||
| 物件番号 | 845 | ||
| 建築確認番号 | |||
| 自社物 | 自社物 | 状態 | 成約 |
| 特記事項 | ※旧住宅地造成事業法により再建築可能。 | ||
🌈おすすめポイント🌈
・敷地面積165.00㎡(49.91坪)🏠
・嬉しい更地渡しです✨
・閑静な住宅地で住みやすい環境です🎵
・最寄りのスーパー(ウエルシア小野天神店)まで徒歩14分🛒
・建築条件無い為、お好きなハウスメーカー・工務店等で建築可能です🏠
🏫小野東小学校まで徒歩18分🏫小野中学校まで徒歩20分
★ランドアークハウジングは、将来を見据えた物件のご提案させて頂きます。
☎まずはお気軽にお問合せ下さい!!